
漫步于黄阁镇东里村的青石板路上
旧时的公社大院静静矗立
砖木之间,仿佛还能听见历史的回响
一栋老建筑,一段旧时光
正以一种新的生命力崭新的姿态
诉说着南沙的悠悠岁月
2025年12月
喜巢·公社麟居民宿已经开业正式开放
它不仅是黄阁镇“百千万工程”的重要成果
更是“老城新生”伙伴计划在乡村文旅融合中的生动实践
前言:为深入学习贯彻习近平总书记关于“坚持人民城市人民建、人民城市为人民”的重要论述精神,2022年市历史文化名城保护办公室、市规划和自然资源局启动“老城新生”伙伴计划,搭建政府、企业、高校师生、民间组织和广大市民的开放合作平台,以政策沟通、资金融通、民心相通为核心理念,坚持保护为先、利用为基、传承为本,坚持市场主体、政府引导、社会助力,探索全社会广泛参与历史文化保护传承的新机制新模式。形成实施一批、建设一批、方案一批、培育一批的态势。2025年12月,黄阁镇历史文化保护与乡村振兴(东里旧村部活化利用等)作为伙伴计划在乡村文旅领域的落地项目正式开放,为南沙文旅注入新活力。
01统筹投资于物和投资于人的城乡发展
2025年中央经济工作会议强调“高质量推进城市更新”,在城市发展“两个转向”的新方位下,必须更好地统筹投资于物和投资于人,为城乡高质量发展注入新动能。四年来,伙伴计划从“关注遗产”到“关注遗产、人与社区的发展”,治理方式从“管治型”向“服务型”转变,通过全生命周期的多元支持模式促进实施。项目既强调投资于物,关注更新升级城市基础设施、老旧小区和住房等,也加大对人的投资,关注人的情感与记忆延续,扩大遗产教育、技能培训等服务供给,持续保障和改善民生。
黄阁镇东里村旧村部的活化,正是这一理念的生动写照。 当昔日的公社大院、村委办公楼蜕变为喜巢·公社麟居民宿,它不仅仅是投资于“物”的建筑修缮与功能置换,更是投资于“人”,来延续社区记忆、带动村民就业、传承非遗文化以及培育乡村文旅生态。

整体改造后成效
图片来源:黄阁镇政府
02古镇记忆,七百多年的文脉积淀东里记忆场,七百年文脉层积
在珠江出海口、伶仃洋畔的南沙,黄阁镇位于南沙区中心重要位置,有近800年的历史,被原国家文化部授予“中国民间文化艺术之乡”,大半部南沙社会文化发展变迁史在黄阁得以体现,农文旅产业发展资源独一无二。
东里村是广州市传统村落,位于黄阁镇的中心地带,是黄阁镇中心的四大村之一,镇政府的所在地,与东湾村、大井村、大塘村、莲溪村紧邻。这座古村始建于南宋末年,因中原汉人南雄珠玑巷麦氏兄弟携眷南迁至黄旗角定居而形成。村中七百余岁的龙门古树,根脉与古匾共生,形成“古榕包门楼”的景观,见证着古村的历史变迁。村内现存有将军麦公祠、辅党麦公祠、少山麦公祠、辅熊麦公祠、观明麦公祠、广昇楼、东里红楼等众多历史文化遗产。这些遗存聚集在东里大街两侧,见证了东里村的建村起源、宗族兴盛与近代开放,共同构成了一部脉络清晰、可触可感的村庄发展史、一个层次丰富的“记忆场”。

龙门古树
图片来源:印象南沙

黄阁镇麦氏大宗祠
图片来源:广州南沙发布
03伙伴同行,黄阁镇活化利用再出新篇
东里村委会前身为明代始建的“观明麦公祠”,抗战时期被炸毁后于1945年重建,曾是黄阁镇规模最大、工艺最精的建筑(三进两天井格局)。新中国成立后,它先后作为黄阁卫生院、历届镇政府及东里村旧村部使用。2023年村委办公室搬迁后,主体建筑一层敦本堂用作黄阁麒麟舞的传承基地,其余大部分空间闲置,老建筑拆卸下来的石雕、碑刻散落在院中,亟待盘活重新焕发新生。


改造前建筑情况
图片来源:广州市城市规划设计有限公司

敦本堂用于麒麟舞传承基地
图片来源:广州市城市规划设计有限公司

改造前散落的石雕、碑刻
图片来源:广州市城市规划设计有限公司
同年,南沙区推进“百千万工程”实施,在黄阁镇打造新乡村示范带,通过对东里村、莲溪村、南涌口村等多个村庄进行村容村貌提升,解决街市里的违规占道、村落环境品质不佳等问题,吸引了企业家在此挖掘商机。喜巢民宿先后将东里旧菜市场及东里旧村部承租下来,斥资改造成东里村的文化主题民宿。东里旧村部位于东里大街与麒龙中路交界,既衔接村内众多文化遗产的重要历史脉络,又面向村中主要公路,与旧市场改造成的新民宿隔街相望,形成呼应,有望成为深度体验黄阁古镇风貌、探索周边历史文化资源的理想驻点。

东里旧村部周边历史文化遗产分布情况
图片来源:广州市城市规划设计有限公司
东里村旧村部改造项目的落地,也是“老城新生”伙伴计划与黄阁镇在历史文化保护传承上持续深耕、逐步递进的生动缩影。早在2022年第一届伙伴计划,黄阁镇即以小虎岛人民公社历史建筑修缮项目加入伙伴计划,完成了项目高质量落地并协同活化利用、宣传推广的全过程实践。基于良好的合作关系与双方满意的成效,双方进一步深化合作,将黄阁镇历史文化保护与乡村振兴项目纳入第三届伙伴计划实施项目,持续跟进黄阁镇内各项历史文化项目的实施。第三届推动了黄阁机械厂改造项目落地,将具有近70年历史的工业厂房改造利用为非遗传承基地,项目成效广受好评。

小虎岛人民公社历史建筑修缮项目
图片来源:广州市城市规划设计有限公司
(回顾推文:重获新生!南沙最大公社礼堂“活”起来了!)

黄阁机械厂改造项目
图片来源:广州市城市规划设计有限公司
(回顾推文:伙伴计划丨古镇新生:闲置厂房变身非遗传承基地)
本次东里村民宿改造,正是延续这一成熟合作关系的新篇。2024年起,东里旧村部开始策划活化改造,伙伴计划团队在前期多次实地调研,持续跟进项目运营招商、产权租赁、团队招标等环节,商定纳入2025年度承续项目。纳入后与实施方共同商讨,为东里村旧村部建筑改造提供建议,通过历史记忆符号的当代转译,推动石雕、碑刻以及非遗等历史文化要素融入改造设计。从试点破题到系统推进,伙伴计划已与黄阁镇建立起可持续的友好合作关系,实现了老建筑的再生,也展现了黄阁镇与伙伴计划协同促进古村文脉传承的扎实成效。

伙伴团队实地调研东里村旧村部改造项目
图片来源:广州市城市规划设计有限公司
04 烟火共聚,乡村文旅的场景赋能
古今对话,老建筑的新生
喜巢·公社麟居作为一处承载集体记忆的历史空间。改造过程中,项目坚持“修复为主、融入为辅”的原则,最大限度保留原有建筑风貌与空间肌理。老石材、老木头、敦本堂石碑、麒麟古井等老物件与构件被精心保留并重新利用,让民宿不仅是一处休憩之所,更成为黄阁文化传承的鲜活载体。
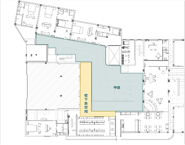
改造设计充分尊重并强化了原建筑与中部庭院的空间关系,并保留了西侧建筑的外廊空间,形成连接各栋建筑的灰空间,使行走动线在传统与现代之间取得平衡。二者共同应对岭南多雨、日照长的气候,提供丰富的空间层次。庭院中从保留的麒麟古井引出一条溪流,溪旁石头就地取材,不仅营造了具有自然野趣的岭南庭院景观,更利用水体蒸发有效调节了微气候。拆下的旧青石被清洗打磨成茶桌,能用的老木头悉数改造成家具,乃至“敦本堂”匾额都被原样保留与修缮,让历史的物质痕迹得以延续。

民宿改造保留岭南庭院格局
图片来源:喜巢·公社麟居

整体改造后成效
图片来源:黄阁新声



老物件保留并重新利用成效
图片来源:黄阁新声


2024年东里旧村部原状 2025年东里旧村部改造成效


2024年东里旧村部原状 2025年东里旧村部改造成效


2024年东里旧村部原状 2025年东里旧村部改造成效
改造前后对比(向右滑动查看)
图片来源:黄阁镇政府
文脉延续,设计融入生活
民宿以“麒麟、白泽、英招、当康”四大祥瑞之兽为主题,打造30间各具特色的客房。房间设计融合中式古朴韵味与现代舒适体验,配备智能卫浴、全景落地窗、部分房型更设有私汤泡池。在保留历史质感的同时,也满足了当代旅客对品质生活的期待。


各类主题与功能空间
图片来源:黄阁镇政府
乡村复兴,文旅融合新场景
东里村是黄阁镇保存完好的古村落之一,周边有东里红楼、龙门古树等历史景观点缀。本次项目不仅限于民宿改造,更规划建设了专属商业街,引入网红饮品、特色小吃、美容SPA等业态,实现“吃住行游购娱”一站式体验。同时,民宿将定期举办剪纸、广彩等非遗体验活动,让游客在休闲中感受黄阁的人文温度。公社麟居的落成,不仅活化了一处老建筑,更为黄阁镇打造了一个集“住、游、玩、吃”于一体的乡村文旅融合新场景,助力当地文旅品牌建设与乡村振兴。

落日观景台
图片来源:黄阁新声

民宿餐厅
图片来源:黄阁新声

周边文旅资源东里红楼
图片来源:印象南沙
喜巢·公社麟居的诞生,是乡村老建筑活化的成功探索。它不但改善了村容村貌,让老建筑焕发新生,让文化可触摸、可体验、可传承,还带动当地数十位村民就业。作为长期合作伙伴,未来,伙伴计划将继续与黄阁镇携手,持续提供技术咨询、方案建议、政策解读、宣传推广等支持,以“绣花功夫”共同推进乡村文旅融合发展,让更多历史空间融入当代生活,书写南沙文化保护传承新篇章。