导读:为深入贯彻落实党的二十大提出的坚持人民城市人民建、人民城市为人民,加快转变超大特大城市发展方式,遵循习近平总书记对广州提出的实现“老城市新活力”、“四个出新出彩”的重要指示,响应自然资源部对全国特大城市高水平、高标准、高起点进行城市规划、建设、管理的要求,沙巴体育平台与广州市城市规划设计有限公司探索城市高品质建设、高质量治理的途径,在全市积极推广社区设计师工作。我们聚焦市民需求,邀请广州市设计院集团有限公司总建筑师马震聪、广州市城市规划勘测设计研究院总建筑师胡展鸿、南沙原创建筑设计工作室主持建筑师刘珩,对广州大桥底公厕、大南路公厕、1路公交车总站公厕开展设计改造,打造城市品质建设的精品示范。
01 | 广州大桥底公厕设计
打造二沙岛便民服务设施“新名片”
公厕位于二沙岛、广州大桥底,如今面临厕位不足、立面简陋、气味较大且第三卫生间缺乏等问题。广州市设计院集团有限公司总建筑师马震聪及其团队关注市民需求,契合场地周边高品质城市面貌,打造二沙岛便民服务设施“新名片”。


▲广州大桥底公厕现状
设计师团队改变公厕现有布局,为其融入了第三卫生间,并保留了管理设备间,做到在解决通风不足、气味难闻等问题的同时,丰富内部空间功能,提升市民使用体验。不仅如此,设计师团队还根据场地现状特点,以通透的设计造型,植入“木棉花”元素,打造舒适、简约、大方的城市公厕。

▲公厕平面图


▲广州大桥底公厕人视效果图
环形屋檐下,公厕室内、外空间若即若离,营造出“坚韧简约”的整体风格。木棉的花瓣自然形成厕所空间,内部采用开放式天井布局,通过竖槽分隔提高室内采光与空气流通,既保证了公厕的通风,又保护了使用者的隐私。


▲内部空间设计效果
02 | 大南路公厕改造
打造北京路商圈的“小精致”
大南路公厕位于北京路核心商圈,起义路与大南路交界。该公厕始建于上世纪80年代,厕位数量较少且男女厕位比例不合理,已无法满足今天日益增长的居民和游客使用需求。改造邀请广州市城市规划勘测设计研究院总建筑师胡展鸿团队主持设计。

▲公厕复杂环境现状
设计师团队提出将“公共性”作为改造突破的重点,将居民和游客的使用需求放在首位。灵活使用轻介入、低成本的改造手段增加厕位数量、优化公厕内部流线、提升女厕厕位比例,整体优化公厕使用体验。

▲公厕平面图

▲正立面设计效果

▲公厕入口
在外立面提升上,设计师团队结合公厕所处步行街花店与灯饰店较多的特点,提出“花之钢琴”的概念,通过钢琴琴键般叠合的格栅曲线勾勒公厕外表皮。夜深人静,暖光从建筑的空隙中透出,与大南路的灯饰店交相辉映。

▲基于原建筑的复杂结构提出的幕墙系统

▲夜景设计效果
03 | 1路公交车总站公厕改造
打造学校旁简洁大方的“巧立方”
1路公交车总站公厕位于署前路与庙前直街相交处,西侧为地铁进出风口,东侧为署前路小学,南侧为1路公交车总站。公厕常常有大量的游客、学生、家长使用,但却面临着厕位不足且缺乏第三卫生间等问题。为更好为市民排忧解难,项目邀请南沙原创建筑设计工作室主持建筑师刘珩参与设计。


▲1路公交车总站公厕现状
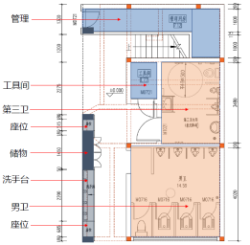
设计师团队打通内部闲置杂物房增加公厕厕位,同时优化公厕内部流线并增设了工具间及第三卫生间,大大提升了公厕的空间功能。不仅如此,还通过设置多功能厚墙的方式,匿藏清洁用房的工具存贮功能,做到在有限的场地内,最大化提升市民用厕体验。


▲首层平面 ▲二层平面

▲1路公交车总站公厕效果分析
▲1路公交车总站公厕设计效果


▲1路公交车总站公厕设计人视效果
结语:
社区设计师公厕改造系列项目致力于满足人民美好生活需求,注重对城市文化和公共服务设施的高效结合,借助设计的力量,解决市民使用公厕时遇到的困难。项目通过绣花般的细心、耐心、巧心,提升城市品质,不断增强人民群众获得感幸福感安全感,打造宜居、宜业、宜学、宜游、宜养的品质之城。