为贯彻落实党的十九大提出的“打造共建共治共享的社会治理格局”的要求和习近平总书记对广州提出的实现老城市新活力、“四个出新出彩”的重要指示,以及市政府印发的《广州市社区设计师工作方案》的工作部署,探索建立公众参与城市空间品质提升的平台,营造有品质、有活力的社区空间。南沙区社区设计师办公室就南沙区横沥镇庙贝社区旧酒厂改造举办“社区事·街坊做”设计竞赛征集活动,面向社会征集优秀设计方案。
一、项目背景
为落实推进2022年南沙区容貌品质社区培育提升工作,横沥镇庙贝社区作为重要选点,提出社区容貌品质提升工作要求:一是社区居委会要开展问计于民活动,切实了解社区居民最真实、最急切的需要,将居民的需求融入到社区培育提升工程;二是要发掘庙贝农场的历史文化,并在开展社区提升工程的同时避免“大拆大建”,通过翻新修葺社区的老旧建筑,让社区居民留住乡愁;三是要按照市标准要求,开展常态化环境整治、绿化提升、垃圾分类和责任区制度落实。
旧酒厂位于南沙区横沥镇庙贝社区内,建于1960年代,原为知青下乡时期庙贝农场所建的米酒酿造厂,具有一定历史意义,现房屋老旧荒废,本次设计竞赛拟通过对旧酒厂建筑外立面及周边进行改造,盘活老旧建筑,唤醒农场记忆,提升环境品质,补充新的公共活动场所,激活社区活力。
二、设计内容
(一)设计范围
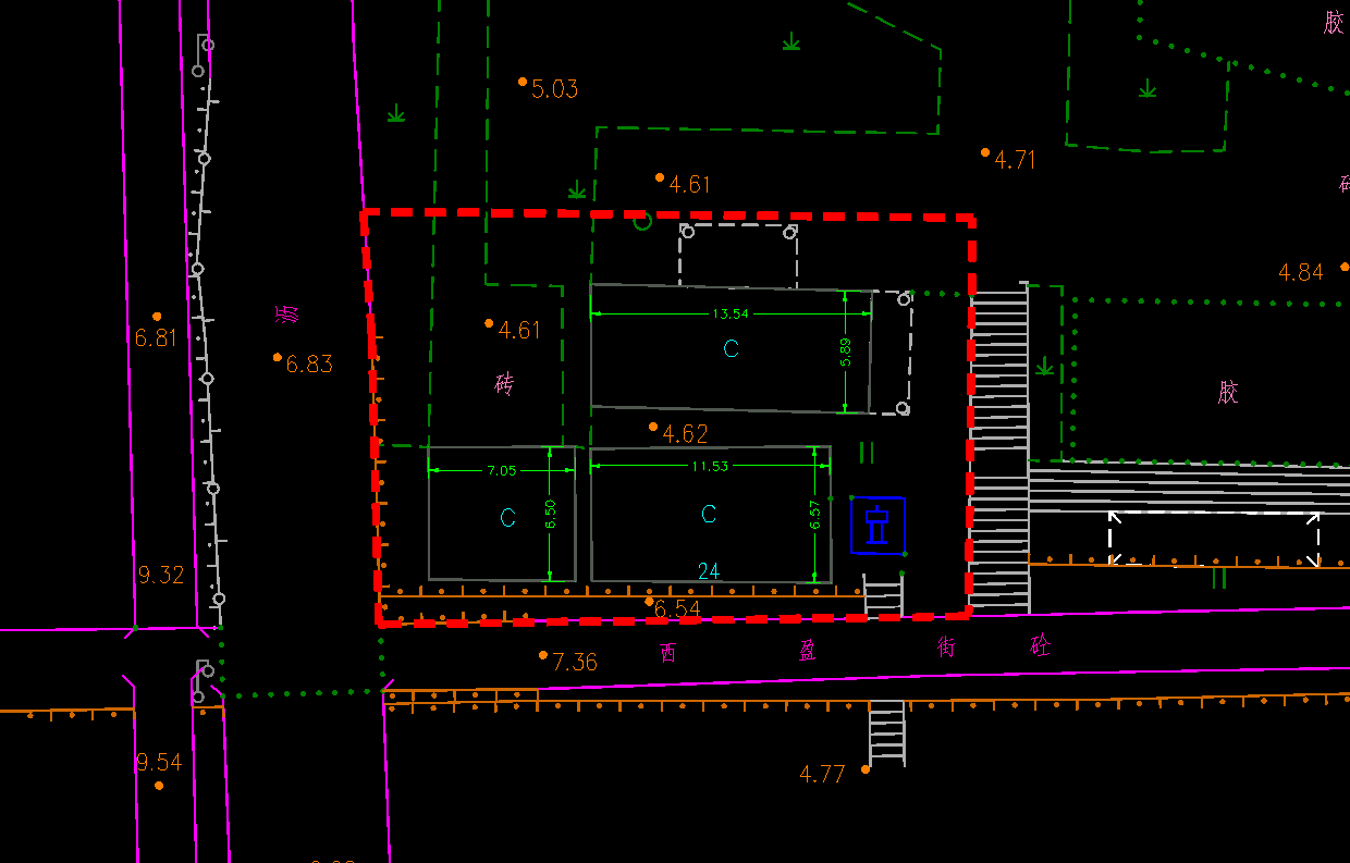
旧酒厂位于南沙区横沥镇庙贝社区,西临南丰路,北接庙贝文体公园,项目占地面积约360平方米,建筑面积约220平方米。

图2-1 项目航拍图1

图2-2 现状航拍图2

图2- 33 现状实景照片
(一)设计目标
重塑一个场所,重塑一种精神。唤醒庙贝农场老一辈职工及知青下乡历史记忆,打造历史的庙贝社区公共空间。维持原有酒厂建筑结构,对建筑进行改造提升,避免大拆大建,同时需活化利用。保留其建筑美学价值和原有时代记忆与特质,进而为庙贝社区创造一个新的精神展示窗口。
(二)设计要求
设计方案应综合考虑历史文化、建筑风貌、民风民俗等要素,重点突出主题性、创新性、艺术性和环保性,并有效协调周边绿化景观环境关系,营造出具有场所感、趣味感和视觉美感的社区空间。
注重经济实用、可实施性强,在材料应用、空间使用等环节的设计中,充分考虑安装环境、制作成本等因素。
三、征集方式
竞赛采取公开自由报名的形式,社会从业人员或在校学生,均可以个人或团队形式参赛,倡导多专业联合组队。
四、竞赛流程
(一)报名:自发布之日起至2022年9月30日24时截止,报名成功后主办方将提供参赛编号和项目的详细资料。
(二)线上答疑:2022年9月19日-2022年9月28日
(三)成果提交:2022年10月23日24时截止
(四)线上公众投票评选:10月24日-10月28日
(五)评审:2022年10月31日
(六)获奖名单公布:2022年11月4日
(七)成果展示:2022年11月8日
所有时间均以北京时间为准,主办方有权根据项目开展需要调整日程安排。
五、报名方式
方式一:手机微信扫下方报名表二维码,在报名截止时间前填写报名表信息进行报名。

图5-1竞赛活动报名表二维码
方式二:下载文末附件报名表和声明书,在报名截止时间前将报名表、声明书发送至电子邮箱:nssqsjs2022@163.com。
主办方审核相关信息后,将参赛编号和项目的详细材料反馈至报名邮箱。
一、现场踏勘及答疑
由于疫情原因,此次竞赛将不安排统一现场踏勘,请参赛人员自行前往,2022年9月19日至2022年9月28日期间进行邮件答疑。
二、作品提交形式
(一)作品形式
1.格式:jpg电子文件格式,图纸分辨率不低于300dpi
2.规格:A1尺寸图,两张
3.内容:开展方案设计,内容包括但不限于:设计说明、设计概念、设计思路以及方案设计的相关图纸(区位图、总平面图、透视效果、相关分析图等)。
(二)提交方式
参加者需在成果提交截止时间前,将成果发送至nssqsjs2022@163.com。作品文件名称为“报名编号+作品题目”。成果应制作成一个压缩包上传,以最后上传的压缩包为准。
八、作品评审
(一)评审时间
2022年10月31日
(二)评审方式
由主办方邀请业界资深专业人士组成赛事评委会独立评审奖项。
(三)线上公众评选
人气作品评选将通过公众网络投票方式,在南沙区政府网站、微信公众号等开通公众投票渠道,根据得票数评选人气奖。
线上投票评选时间:10月24日-10月28日
九、奖项设置
设置一等奖1名,奖金25000元;二等奖1名,奖金8000元;三等奖2名,奖金3000元;优秀奖5名,奖金1500元/人;人气奖1名,奖金1500元。
十、组织机构
主办单位:南沙区社区设计师办公室(沙巴体育APP南沙区分局)
协办单位:广州市南沙区横沥镇人民政府
承办单位:广州市参客市场调研有限公司
联 系 人:宁先生 18529114728
彭先生 020-84986625
附件下载: